040期-追遠堂的空間組織
文/圖:葉永韶
游氏家廟追遠堂位於宜蘭縣壯圍鄉壯六村壯六路36號,與西側的壯圍市區間隔著宜蘭河,需要過中央橋才能到達,聯外交通重要動線包括宜蘭河左岸的堤下道路、縣道12號、省道台7線、台2線、國道5號等皆在其附近,可聯接至壯圍鄉內及宜蘭市、礁溪鄉、五結鄉等週邊鄉鎮。
從地圖(圖1)、(圖2)可知游氏家廟追遠堂位於壯圍鄉之宜蘭河北側壯六地區的農田中。所在區域的地形為沖積平原,區域內土地多為稻米等之農作,宜蘭縣重要河川的宜蘭河下流流經本區域南緣。
位於農作地區的追遠堂,區域內因維持著農作型態,週邊聚落多也維持著同姓居住的「姓底村」聚落型態,游氏家廟追遠堂週邊為三個游氏子孫居住的竹圍聚落。區域內的公共性空間為壯六社區活動中心、鎮安廟等。
追遠堂坐落的基地為壯圍鄉復興段1192地號的土地,整筆土地以向南方向言,形狀略呈橢圓形,土地週邊為水利圳溝,土地邊界十分的清楚。土地上除了追遠堂與二側護龍建築外,還有順著右護龍後側的二道外護龍、二層加強磚造建築;在左護龍外則有著三合院(圖3~5)。
追遠堂建築之配置,採坐北北東朝南南西的坐向(座癸向丁兼子午分金丙子,穿山分金壬子,透地分金乙丑 (註1))。家廟四周原密植竹叢形成包被,後期因竹子密生、土地利用、打掃不易、乏人照料等因素而加以清除。
追遠堂背後雖無近山,但遠處頭城鎮、礁溪鄉群山峰巒起伏。以追遠堂言右側的宜蘭河從右後往前側流去。追遠堂前方遠處,正對並非全是大海(太平洋),而是地屬南澳鄉、蘇澳鎮及北方澳等的群山。就整體地理風水言,追遠堂位於廣疇的平原上,仍處在山環水抱的自然環境中。
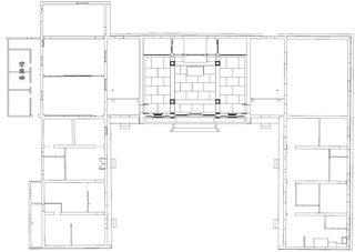
在建築物配置上為一殿二廊二護龍,中央的追遠堂家廟三開間為磚木構造,過廊為磚木構並在後側增建採光之鋼架雨棚,二側護龍為加強磚構,後方庭院則配置有加強磚構的廁所,前埕現為混凝土地面曬穀場,後庭院草皮植栽,基地外圍並有配置圍牆。
游氏家廟為一座合院的建築,其空間組織上與一般的傳統合院民宅相同,平面布局為中央正身二旁護龍的格局,追遠堂位於中軸線上,並由左右過廊與左右護龍的簷廊連接,過水廊並連通前埕、後院。在空間次序位階上由中軸核心向外推演,愈往外位階越低。(圖6、圖7)
家廟的前方配置有原始當作農作曬稻穀的前埕,前埕前側有圍牆、水圳與外側農田互為阻隔,稻埕已經不作為曬稻使用,除了每年祭祖搭棚辦桌宴親使用外,平常使用頻率很低。後院種植草皮、灌木及少數的喬木,左側有後期增建形制不協調的平頂加強磚構廁所,後院出口位於右側可通外側道路,後院圍牆外側有水圳、農田(圖8~10)。
備註
註1 游永德,1980,《游氏追遠堂祖譜》,頁34。
