:::

蘭博電子報

人與土地的對話-頭城的人地發展(七)

張政亮、莊漢川、康芳銘、林建呈

-蘭陽博物館節錄自《人與土地的對話-頭城的地理采風》一書 第222~257頁

第177期-2025年06月

圖1:人與土地的對話-頭城的地理環境一書封面。
圖1:人與土地的對話-頭城的地理環境一書封面。

頭城市鎮變貌及擴 1979~2002 年

社會經濟背景

濱海公路通車及東北角海岸風景區成立雖然為市鎮帶來嚴重的交通衝擊,但也開啟了市鎮產業朝觀光遊憩轉型的新時代。在此大環境的發展氛圍下,烏石漁港的開闢及帶來周邊的發展自然被賦予小鎮榮景再現的重大使命,從政府到民間無不引頸翹首,全力促成。市鎮的人口雖然停滯甚至萎縮,然而發展的腳步卻反而大步邁進,在此時期市鎮空間產生前所未有的巨大改變。

( 一 )、市鎮空間切割(圖 2)

1971 年公告實施的頭城都市計畫,至 1996 年開闢烏石漁港的頭城都市計畫變更公告前,雖歷經兩次都市計畫通盤檢討,及數次因個別的公共使用需求而進行的土地使用分區調整專案變更,但基本上決定了市鎮發展的空間架構與邊界,直到 2012年烏石港區段徵收計畫區公共工程開工後,市鎮空間才再次有結構性的變動。

圖2:1979 年林務局農林航測所相片基本圖 (來源:林務局農林航測所 )。
圖2:1979 年林務局農林航測所相片基本圖 (來源:林務局農林航測所 )。

濱海公路的通過及頭城大橋的開闢並不在頭城都市計畫擬定時的計畫構想中,卻硬生生的切割了市鎮空間的完整性及鄰里單位的內部聯繫,然而都市計畫本身的執行,卻也是破壞市鎮空間紋理及文化史蹟最大的元凶之一 !

計畫內將大部分舊市街範圍畫設為商業區及機關用地,並配置密集的東西向 12 公尺以上計畫道路,直到 1989 年鎮公所配合國家政策,徵收都市計畫內 10 公尺 ( 含 ) 以上道路 19 條,徵收土地 987 筆,面積共約 10 公頃,1990 年包含 1-4 號(南門路),1-5 號(沙成路),1-7 號(民鋒路),1-8 號(和平東路)的 10 及 12 公尺東西向道路開闢,南北走向的老街及東西朝向的聚落紋理遭開腸剖肚式的切割,老街尺度、韻律及延續性遭受嚴重破壞(圖 3)。

圖3:1990~1994 年市街道路開闢及拓寬位置圖 (來源:宜蘭縣政府國土暨都市計畫資訊網、自繪)。
圖3:1990~1994 年市街道路開闢及拓寬位置圖 (來源:宜蘭縣政府國土暨都市計畫資訊網、自繪)。

市鎮空間尺度轉變

經過 1970 年的鄉土文學論戰,台灣本土文化在文學、音樂、藝術、建築各領域逐漸在台灣社會成為顯學,文化保存的觀念從民間到官方也開始萌芽。文化資產保存法於 1982 年公告實施,北門福德祠與老街十三行復於 1985 年由內政部指定指定為三級古蹟,然而此時期卻同時也是經濟起飛的年代,從政府到民眾對歷史文化空間仍普遍存在陰暗破敗陳舊、需積極改建的認知,當文化保存的價值與開發建設發生衝突,文化部門指認古蹟或歷史建築的作為在地方仍遭受極大的抗拒。

1981 年第一次通盤檢討後將商業區範圍延伸擴大,往北延伸至農會,往南延伸至今鎮公所對面。市街已為數不多的日治時期水泥瓦斜屋頂沿街店鋪也都紛紛改建,原本舒緩的市街空間尺度及素樸的小鎮景觀自此全面改觀。都市計畫東西向道路開闢後,開蘭路、纘祥路、吉祥路等主要道路也從 1994 年起陸續拓寬,建商立即遊說遭拆屋後用地零碎的地主,大舉收購整合土地闢建 8 層電梯公寓。

鎮內最重要的老街歷史街區,直到 1992 年才由當時復興工商專校建築科師生進行勘查測繪,並彙整揭示其歷史脈絡及文化價值。1995 年宜蘭縣政府文化局委託台大建築及城鄉基金會所進行的全縣古蹟遺址調查研究計畫,在上述勘查測繪報告的基礎上,提出十三行的歷史空間特性及未來發展建議。

然而市鎮其他重要的地標空間及廟宇建築,從 1985 年以後即不約而同的陸續拆除改建,頭城市街至 2000 年前後,隨著新世紀的到來,在此階段十幾年間徹底改頭換面,卻也和全台多數類似規模的鄉鎮一樣,面容逐漸模糊難辨而失去歷史小鎮的自明性。

市鎮擴充

1. 拔雅

都市計畫構想中拔雅鄰里單位由 3-1 號復興路、3-2 號公園路及 3-4 號文雅路三條12 公尺主要道路為骨架,此為鐵路以西面積最大、生活機能也最完整的新市鎮空間,鄰里單位內配置國民中學、國民小學、商業區、公園、運動場、市場及行政等公共設施用地。此區於 1966 年私立復興工商專校設置前已開闢進出道路銜接吉祥路,隨著復興工專師生人數逐漸成長,1980 年即以既有進出道路基礎,完成闢建復興路的前二期工程至公園路口,帶動周邊租屋及生活服務業的聚集,逐漸形成小型商圈。

拔雅與市街之間南端以吉祥路平交道跨越鐵路銜接開蘭路,然而唯有南北兩端都能銜接開蘭路才能以環狀的進出動線與市區聯繫。北端以車行地下道穿越鐵路的立體交叉工程歷經多年施工,於 1987 年完工後竟因設計不良地下水上湧而無法使用。雖然文雅路、公園路與數條通達山腳的 6 米道路於 1994 年前開闢完成,鄰里內部主要道路動線已大致完備,仍因與市區最重要的動線串聯無法建立而導致發展停滯。

2. 新興

都市計畫構想在鐵路以西的次要鄰里單位以 2 號吉祥路、3-3 號新興路及 3-5 號新忠路三條 15~10m 寬主要道路為骨架,1983 年及 1993 年新興路與新忠路開闢完成,1990 年新建社區活動中心落成,社區逐漸成形。本區因鐵路平交道與頭城大橋的阻隔,與市街的聯繫較顯薄弱,卻因新興路銜接福興橋,直接串聯鐵路以西的福成、新建與拔雅三處鄰里,且受惠於新興路路口的頭城衛生所醫療資源,及從市街與火車站上下學的頭城家商學生帶來的消費支持,成為 1985 年以後獨立發展的新鄰里單元。

2005 年改建完成的福興橋,北端橋頭位於福成及拔雅淺山農產品經由福德坑溪堤頂道路進入頭城市街小賣的入口端點,逐漸聚集成為橋頭市集,成為福成 - 新建 - 拔雅鄰里生活帶的生活節點空間。

烏石漁港開闢及都市計畫變更

1986 年由台灣省漁業局因應宜蘭地區漁業發展需要,委託台灣漁業技術顧問社烏石漁港提出於烏石港遺址闢建大型漁港,可作為頭城地區近海及遠洋漁船的作業基地。復於 1988 年提出「烏石漁港整體規劃報告」,計畫面積 161 公頃,包含陸域 98公頃,消波水域 22 公頃及泊域 41 公頃,原計畫以一般徵收開發。漁業技術顧問社從1989 年開始進行調查研究及環境影響評估,頭城漁會及地方民代亦於同年籌組「烏石港促進委員會」,積極促成漁港開發。1990 年由宜蘭縣政府接手進行用地取得、區段徵收及港區規劃,1991 年第一期工程開工,歷經十餘年於 2002 年第十期工程完工(圖 4)。

圖4:烏石漁港港區計畫圖 (來源:宜蘭縣政府國土暨都市計畫資訊網)。
圖4:烏石漁港港區計畫圖 (來源:宜蘭縣政府國土暨都市計畫資訊網)。

結合烏石港開闢的周邊土地開發,也促使公私部門於 1996 年起著手展開一連串的頭城都市計畫主細計畫變更案。1996 年的「變更頭城都市計畫 ( 開闢烏石漁港案 )說明書」中,認知計畫區與市鎮關係緊密,港區開發將對頭城的整體發展產生重大影響,不應僅就漁港建設的單一功能出發,應「為遊艇、海釣活動及區域幹道預留土地,期能使功能單一地漁港擴充為觀光漁港,開發方式及整體發展亦能顧及地方民眾及頭城舊市街之需求」(圖 5)。

圖5:烏石漁港地區規畫構想圖 (來源:宜蘭縣政府國土暨都市計畫資訊網)。
圖5:烏石漁港地區規畫構想圖 (來源:宜蘭縣政府國土暨都市計畫資訊網)。

此一重大的都市計畫變更案,於是在此前提下將原計畫區東北側約 105 公頃的農業區進行開發,並提出 5 點考慮作為未來的發展方向 :

1. 建設為漁業與遊憩兼顧的港口。
2. 開闢新的區域聯外道路繞經舊市街外圍,滿足港區對外的運輸需求並減少穿越性交通對住宅區的干擾,建立完整交通路網。
3. 回復烏石港的歷史意義,結合烏石礁的海域景觀及漁港的觀光潛力,塑造特殊景觀。
4. 強化計畫區與既有市街的聯繫,重整環境意象。
5. 詳定土地使用及建築型態管制要點規範,反映並塑造地方特殊風格。

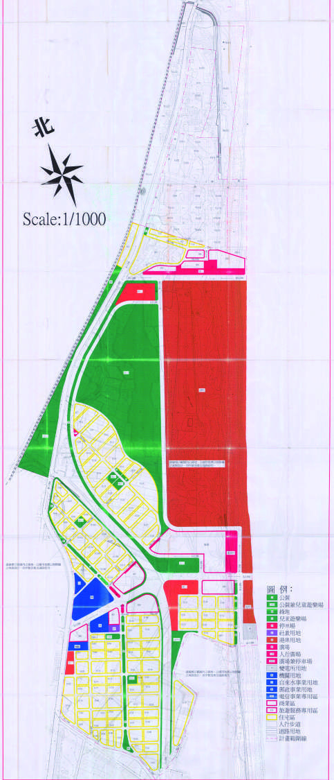
此主要計畫變更案配合區段徵收法令要求,土地使用劃設住宅區、商業區、漁港用地;交通運輸用地劃設台 2 省道新路段 ( 烏一號道路,今環鎮東路 ),路寬 25-30公尺,為計畫區聯外道路及市鎮外環道,烏二號道路,路寬 25 公尺,為取代協天路聯繫舊市區的主要道路,烏三號道路 ( 今烏石港路 ),為台 2 省道通往漁港區的主要道路;公共設施用地主要包含公一烏石礁公園、機關、自來水、電信、社教、郵政、漁市場、停車場、廣場、廣停及綠地等(圖 6)。

圖6:變更頭城都市計畫 ( 開闢烏石漁港案 ) 土地使用示意圖 (來源:宜蘭縣政府國土暨都市計畫資訊網)。
圖6:變更頭城都市計畫 ( 開闢烏石漁港案 ) 土地使用示意圖 (來源:宜蘭縣政府國土暨都市計畫資訊網)。

2000 年 6 月細部計畫公告實施,依頭城都市計畫 275 人 / 公頃居住密度標準,計畫區預計可容納 28600 人。調整土地使用分區為住宅區、商業區、旅遊服務專用區、公共設施及交通運輸五類土地使用分區,並明定以區段徵收方式開發。
細部計畫的規劃構想如下(圖7):

1. 規劃範圍內分為三個各有特色的多功能住宅區
2. 建立社區小型公共空間與全區開放空間系統相連
3. 保留原有都市紋理
4. 以形狀單純的街廓創造都市景觀
5. 建立社區商業街並與廣場連接
6. 創造重點名勝,提供觀光據點及活動空間
7. 建立遊戲巷系統

細部計畫公告實施同時公告變更主要計畫,在土地使用分區上較大的調整如下:
1. 結合未來觀光碼頭及候船室等設施而將東北側的市場用地變更為港埠用地
2. 因應港區未來作為兼為遊艇港的方向,需容納遊艇等相關設施,變更漁港用地為港埠用地
3. 因應港區觀光碼頭之開發,將港埠用地南側之商業區、廣場及廣停用地變更為旅遊服務專用區,且為促進土地開發利用,規定應整體開發
4. 將進入漁港區出入口東側之部分住宅區變更為商業區

圖7: 擬定頭城都市計畫 ( 開闢烏石漁港案 ) 細部計畫圖 (來源:宜蘭縣政府國土暨都市計畫資訊網)。
圖7: 擬定頭城都市計畫 ( 開闢烏石漁港案 ) 細部計畫圖 (來源:宜蘭縣政府國土暨都市計畫資訊網)。

空間分析

(一)、區域

頭城都市計畫的實施,將 1970 年以前以線形發展的舊市街範圍開始往鐵路以西及青雲路以東擴展,以新闢的計畫道路系統及鄰里單位的概念逐漸形成面狀的市鎮區域。

青雲路以東因 1-5 號道路 ( 沙成路 ) 的開闢率先發展,以建商主導,密集連棟透天販厝的建築型態也首先在此區出現;以復興工專師生教育及生活需求所帶來小型商圈及生活圈,配合復興路、文雅路及公園路的開闢,逐漸往外擴展形成鐵路以西新的”新郊區”,2001 年以後復興工專改制為蘭陽技術學院,帶來鎮外甚至縣外的師生,更加速拔雅地區的發展;1968 年破土興建,於 1974 年已闢建完備的頭城高中 (1988年改制為頭城家商 ),帶來鎮內外師生的消費需求,配合新興路及新忠路的開闢,同樣開始帶動鐵路以西新建地區的發展。

至於從 1986 年以後即開始規劃醞釀的烏石漁港至大坑間的細部計劃區,至 2002年烏石漁港完工前仍正進行都市計畫擬定、變更及區段徵收作業中,對市鎮空間尚未產生改變。

(二)、邊緣

市鎮空間的擴大也讓區域邊緣隨之往外擴展,都市計畫的實施及復興工專帶來周邊的活動及開發,使鐵路以西的市鎮區域產生參差不齊直達山邊的新模糊邊界;鐵路仍然是舊市街與拔雅新郊區牢不可破的邊界;東側則以台 2 省道 ( 今頭濱路 )、開蘭東路、沙成路及沙成路 2 巷界定明確的市鎮邊緣。

延續前一階段,青雲路在都市計畫實施後,本應從市街邊緣轉變為市鎮鄰里的出入通道,卻因濱海公路及頭城大橋的開闢,仍形成切斷鄰里聚落,難以跨越的明確邊緣。

(三)、通道

1.1978 年開闢完成的都市計劃 1-5 號道路 ( 沙成路 ) 為市街中心通往頭城海水浴場的新通道,也是青雲路以東新鄰里單位的進出通道。

2.1979 年 8 月通車的北部濱海公路頭城段 ( 青雲路 ) 為基隆 - 花蓮間的區域聯繫通道,但也同時是青雲路以東新鄰里單位的進出通道。

3.1980 年開闢的都市計劃 3-1 號道路 ( 復興路 ),1984 年以前只開闢至今公園路口,穿越鐵路下方的車行地下道於 1987 年完工後竟因設計不良地下水上湧而無法使用。1999 年開蘭大橋發包施工,至 2002 年完工通車前,長達 20 餘年的時間鐵路以西的
拔雅及新建地區僅能以吉祥路平交道單點與市街聯繫。

4.1983 年開闢的都市計劃 12 公尺 3-4 號道路 ( 新興路 ),及 1992 年開闢的 10 公尺 3-5號道路 ( 新忠路 ),為新建地區新鄰里單位的主要進出通道。

5.1990 年 12 公尺 1 -4 號 ( 南門路 ) ,12 公尺 1-5 號 ( 沙成路 ),12 公尺 1-7 號 ( 民鋒路 ),10 公尺 1-8 號 ( 和平東路 ) 東西向道路開闢,1991 年完工通車,拆除無數傳統沿街 1~2層水泥瓦斜屋頂住宅及店鋪,2~5 層透天鋼筋混凝土店鋪住宅及 8 層電梯公寓隨後大量出現,百年來延續的老街立面遭切割為 4-5 個區塊,市街面貌從此改觀。

6.12 公尺 3-4 號道路文雅路、3-2 號道路公園路 1994 年開闢,為拔雅地區新鄰里單位的主要進出道路。

7.1994 年 2 號道路吉祥路拓寬為計畫寬度 15 公尺,為市鎮山側通往礁溪、龍潭主要聯外道路。同年 1-2 號道路纘祥路拓寬為計畫寬度 12 公尺,為市鎮中心火車站周邊除開蘭路以外另一條銜接吉祥路的南北向主要通道。

8.1997 年 1-1 及 1-2 號道路開蘭路拓寬為計畫寬度 12~13 公尺,為市鎮中心南北向主要通道。

9.1994 年 12 公尺 2-4 號道路 ( 協天路 ) 西段闢建完成,提供大坑地區銜接市鎮北側及武營的重要通道,從此大坑南北兩端均能銜接開蘭路,以環狀的進出動線與市區聯繫。

地標及節點

70 年代開始的經濟起飛歷經 10 餘年後,一般家庭的家戶所得普遍提升,不但反映在內需消費的增加及休閒生活的重視,也直接投射在追求成長的價值觀改變,無論在物質或精神層面,浮誇炫富的社會表象屢見不鮮,於是與鎮民信仰生活最密不可分的入世象徵 - 廟宇,在此時期紛紛不落人後的換穿新裝,展開輸人不輸陣、擺脫落伍的換裝競賽。

此階段鎮內新公共性地標的出現及舊公共地標的轉變如下:(圖 8~27)

1. 綜合商場

1976 年以後分駐所搬遷至武營里頭城國小西南側,原址即以公共造產方式改建為 2層 31 棟綜合商場大樓,於 1980 年 8 月落成啟用。商場成為市鎮中心連接火車站與開蘭路最重要的地標商業空間,兩棟商場中間的街道空間位於市街中心,是市街最頻繁舉辦戶外節慶或展演活動的生活節點。

圖8:綜合商場 ( 張恆瑞 攝 )。
圖8:綜合商場 ( 張恆瑞 攝 )。

2. 喚醒堂
鎮內唯一以三合院書院型式,具濃厚教化功能及傳統漢學承傳使命的喚醒堂,正殿前設造型比例優美的木造歇山拜亭,率先於 1985 年改建落成,也許是鎮內繼南門福德祠後第二處改建為鋼筋混凝土結構的廟堂,也可能是門生多為鎮內重要仕紳文人,喚醒堂為鎮內唯一改建後仍能維持改建前的建築型式、比例、空間尺度及使用內容的地標建築,堂前院埕及戲台在 80 年代也經常有酬神歌仔戲及布袋戲,或播放露天電影,為中年以上鎮民休閒生活的共同記憶。

圖9: 喚醒堂 ( 喚醒堂 提供 )。
圖9: 喚醒堂 ( 喚醒堂 提供 )。

3. 北門福德祠及十三行
1985 年內政部指定北門福德祠及十三行為三級古蹟,為文資法公告實施後鎮內第一處古蹟,惟竟於 1994 年遭解除古蹟。

圖10: 十三行 ( 張恆瑞 攝 )。
圖10: 十三行 ( 張恆瑞 攝 )。

4. 開成寺及城隍廟
1989 年開成寺、城隍廟管理委員會決定合併兩廟,並於同年 10 月拆除可能於 1864年即存在,極具文資歷史價值的舊廟,於南側一角設置臨時鐵皮屋廟宇,1994 年鐵皮屋內兩廟多尊百年歷史神像竟遭竊。1998 年壯麗巍峨,然古樸盡失的 5 層新廟及廟前牌樓落成安座。

圖11: 開成寺及城隍廟 ( 張恆瑞 攝 )。
圖11: 開成寺及城隍廟 ( 張恆瑞 攝 )。

5. 搶孤民俗園區
1991 年停辦 42 年的頭城搶孤於開蘭東路南側的文小一學校用地上復辦,至今除少數幾年停辦外幾乎每年都在此舉辦。雖然只在農曆七月搶孤前後一個月左右的時間可看到孤棧孤台巍然聳立於廣袤的搶孤園區空地,然而此處強烈的地標象徵卻遠超過鎮內任何一處開放空間。

圖12:搶孤民俗園區 ( 張恆瑞 攝 )。
圖12:搶孤民俗園區 ( 張恆瑞 攝 )。

6. 烏石漁港及魚貨直銷中心
1991 年烏石漁港第一期工程開工,1998 年完成漁市場大樓,包含魚貨拍賣場及直銷中心主體工程,於 1999 年開幕啟用。為宜蘭頭城海域中心漁港,並藉此發展宜蘭縣海洋漁撈漁業,包括近海及遠洋漁業,總面積約為 220 公頃,目前已成為宜蘭縣除南方澳漁港外最具規模之漁港。歷經 11 年於 2002 年完工。烏石港對於頭城乃至全宜蘭在歷史文化層面的地標性無庸再贅言,令人不勝唏噓的是烏石港遺址與烏石漁港雖近在咫尺,然而時隔 2 百多年,兩者之功能、空間脈絡域與歷史意義卻全然迥異,烏石港的興衰牽動頭圍乃至整個蘭陽平原的開發及空間、產業變遷,而烏石漁港的觀光遊憩取向及與周邊的土地開發,不但僅是一座無法在歷史文化的土壤著根的海市蜃樓,更硬生生地成為摧毀文化地景的殺手。

圖13:烏石漁港及魚貨直銷中心 ( 張恆瑞 攝 )。
圖13:烏石漁港及魚貨直銷中心 ( 張恆瑞 攝 )。

7. 東嶽廟
頭城大拜拜為市街每年之宗教盛事,不遜於頭城搶孤。由主祀東嶽大帝的東嶽廟與城隍廟每年輪流舉辦。東嶽廟於 1903 年建廟,1993 拆除舊廟,1997 年改建落成。

圖14:東嶽廟 ( 張恆瑞 攝 )。
圖14:東嶽廟 ( 張恆瑞 攝 )。

8. 農會大樓
1994 年頭城農會拆除頭圍農倉,將這座極具文資價值,見證台灣舊式穀倉過渡到現代化穀倉的典型代表夷為平地並走入歷史,改建大樓及停車場,1995 年落成啟用。

圖15:農會大樓 ( 張恆瑞 攝 )。
圖15:農會大樓 ( 張恆瑞 攝 )。

9. 善慧寺
安靜地躲藏於鐵路後方,1904 年開基興建的募善堂,最後一次於 1980 年重建時,始終仍維持低矮的一層紅瓦厝。多年不堪老舊漏水之苦,於 1998 年開始重建,靜穆的佛寺終究仍趕上了時代潮流,改建為高大但不失素雅的鋼筋混凝土建築,2002 年落成,並改名為善慧寺。

圖16:善慧寺 ( 張恆瑞 攝 )。
圖16:善慧寺 ( 張恆瑞 攝 )。

10. 頭城運動公園
都市計劃 3-1 號道路 ( 復興路 ) 車行地下道完工多年雖仍無法使用,但地面側車道仍可通達鐵路西側,文中二國中用地經鎮公所檢討後,考量鐵路噪音將嚴重干擾遷校後的教學及學習,故與西側運動場用地交換土地使用 ( 但至今仍未完成都市計畫變更 ),1998 年頭城運動公園於文中二用地闢建完成,鎮內重陽敬老,鎮運會等大型集會活動從此移至運動公園舉辦,2000 年公園內游泳池完工啟用,成為鎮民休閒運動的新地標。

圖17:頭城運動公園 ( 張恆瑞 攝 )。
圖17:頭城運動公園 ( 張恆瑞 攝 )。

11. 頭城國中新校區

繼頭城運動公園 1997 年闢建完成,位於西北側的頭城國中新校區隨即於同年 8 月於體育場用地開始動工,2000 年 6 月完工並進行遷校。與運動公園結合的頭城國中新校區,共用綠地、運動及遊憩設施,成為市鎮內最大最完整的公共開放空間。

圖18: 頭城國中 ( 張恆瑞 攝 )。
圖18: 頭城國中 ( 張恆瑞 攝 )。

12. 開蘭大橋

當頭城運動公園已完工啟用,頭城國中新校區也即將落成遷校,1980 年即開始闢建的都市計劃 3-1 號道路 ( 復興路 ),18 年後仍無法跨越鐵路完成連接拔雅與市街的使命,徒留積水的地下道成為市鎮發展的斷點。1999 年發包開工的開蘭大橋,身負完成市鎮路網連接的重大使命,於 2002 年完工通車。由於與鐵路垂直正交,被賦予遊子回鄉前第一門戶意象的地標功能,造型設計充滿浮誇繁冗的裝飾語彙,與橋梁量體極不協調。
臨市街側橋下空間 2015 年起由伊甸社會福利基金會經營老人日托服務中心,提供日間托老、老人送餐及照護者喘息等服務功能。

圖19:開蘭大橋 ( 張恆瑞 攝 )。
圖19:開蘭大橋 ( 張恆瑞 攝 )。

13. 公有零售市場

改建於 1960 年的公有零售市場,從日治時期至今一直都是市街最活絡的常民生活中心,舊市場因通風、排水不良、照明及衛生設備不足,於 1998 年拆除後 1999 年改建完成。

傳統市場改建後功能不彰無法集市,甚至散市收場的案例在全台屢見不鮮,而改建後的頭城公有零售市場不幸成為其中最負面的案例。攤商與消費者間長時間累積的買賣互動形成的空間模式難以複製,其他如都計法規、外部環境、空間尺度、出入動線、類型分區、攤位擺設、通風採光、服務設施…等客觀條件亦需充分掌握。

新市場啟用已 20 餘年,由於建築容積率過低,一樓僅能容納 8 個攤商,租金負擔成本過高,動線及高程設計不良而無法營運,一樓以上僅作貯藏空間長年封閉,僅地下室外租給連鎖超市。所有攤商有機的分散至開蘭路、西四巷、西五巷兩側店家路邊,及農會停車場臨時鐵棚內,至今仍以最有機分布的路邊攤販型式提供鎮民每日生活所需的各類食材。

2000 年已通過都市計畫變更將市場容積率調高 1.5 倍,2012 年都市計畫通盤檢討又已將市場後方的舊鎮公所用地變更為商業區,目前的市場則變更為停車場用地。未來商業區整體開發時將可能納入市場機能。雖然連鎖超商及超市的普及已大幅改變鎮民的消費習慣,但傳統市場有其常民生活文化不可或缺、無法取代的特性,期待未來的開發不再重蹈過去的覆轍。

圖20:公有零售市場 ( 張文義 攝 )。
圖20:公有零售市場 ( 張文義 攝 )。

14. 盧纘祥宅及其庭園 

至今建築外觀內部仍保持良好的盧宅及其庭院,2001 公告為縣定古蹟,為鎮內最重要的私有文化地標之一。

圖21:頭城老街 - 盧宅門庭 (來源:東北角風景管理處)。
圖21:頭城老街 - 盧宅門庭 (來源:東北角風景管理處)。

15. 義人溫文龍銅像

1981 年才剛滿 18 歲的年輕人溫文龍,趁休假回宜蘭和朋友到頭城海水浴場散步,突然聽到求救聲,看見海上一群小學生載浮載沉,情況危急下,溫文龍沒多想就脫掉上衣跳下海救人,最後順利救起 5 名學生,卻筋疲力盡沉入海底,等到被救上岸送醫,卻急救無效。
捨身救人的英勇事跡感動了許多人,頭城地方各界因此在溫文龍下海救人的地點,大坑海堤的端點豎立紀念銅像,紀念這段捨身救人的義行。1983 年銅像揭幕,採真人比例,穿襯衫、小喇叭褲,手插口袋,相當帥氣。

圖22: 頭城鎮公所於民國 71 年 8 月 15 日 ( 即溫文龍遇難週年紀念日 ),在事件發生處舉行銅像落成典禮,以表彰其義行。事後其父母將剪報與活動照片裝框高掛於下埔里溫宅客廳。
圖22: 頭城鎮公所於民國 71 年 8 月 15 日 ( 即溫文龍遇難週年紀念日 ),在事件發生處舉行銅像落成典禮,以表彰其義行。事後其父母將剪報與活動照片裝框高掛於下埔里溫宅客廳。

16. 第 11 示範公墓及納骨塔
1979 年於港口里烏石港舊址附近,設立第 11 示範公墓及納骨塔,1983 年完工啟用。直到 1994 年因烏石漁港工程開始遷葬,1996 年泊船區開挖後全部廢除。

17. 社區活動中心

1980 年起鎮內各社區陸續完成活動中心的闢建及增建,包含大溪,合興、二城、大坑、頂埔、城東城北、武營等社區。活動中心大多設置於社區既有地方廟廟埕周邊,部分結合社區托兒所,在都市計畫構想中各鄰里單位的公園、市場、公共建築 ( 機關 ) 用地大多未闢建的現實中,結合各地信仰中心的社區活動中心實為各社區鄰里不可或缺的社交生活空間。

圖23:1984年農林航測所歷史航拍頭城地區影像 (來源:林務局農林航測所)。
圖23:1984年農林航測所歷史航拍頭城地區影像 (來源:林務局農林航測所)。
圖24:1992年農林航測所歷史航拍頭城地區影像 (來源:林務局農林航測所)。
圖24:1992年農林航測所歷史航拍頭城地區影像 (來源:林務局農林航測所)。
圖25:1996年農林航測所歷史航拍頭城地區影像 (來源:林務局農林航測所)。
圖25:1996年農林航測所歷史航拍頭城地區影像 (來源:林務局農林航測所)。
圖26: 2000年農林航測所歷史航拍頭城地區影像 (來源:林務局農林航測所)。
圖26: 2000年農林航測所歷史航拍頭城地區影像 (來源:林務局農林航測所)。
圖27: 2002年頭城地區航照正攝影像 (來源:中研院百年歷史地圖網站)。
圖27: 2002年頭城地區航照正攝影像 (來源:中研院百年歷史地圖網站)。

書籍資訊

書名:人與土地的對話-頭城的地理采風

作者:張政亮、莊漢川、康芳銘、林建呈

出版單位:宜蘭縣頭城鎮公所

出版日期:2020年