050期-二結農會穀倉
文/圖:宜蘭縣政府文化
改寫自《二結農會穀倉軟體及經營管理計畫》
蘭陽平原雖然自清代起,因為水利事業的發達,成為台灣的三大穀倉之一,但因為多雨,氣候潮濕,而且農作物的收割期又剛好遇到雨季,一般農戶多半無力設置良好的貯藏設施,造成稻米的變質與腐敗,導致宜蘭雖然盛產稻米,出口也多,但是在市場上的價格一直落於中南部的稻米之後。
宜蘭的天候變化劇烈,容易發生糧價的漲跌,加上傳統土壟間等碾米業者趁機賤買高賣,影響民生甚巨。台灣總督府為了提高宜蘭稻米的品質,發揮調節功能以導正歪風,以官費補助各地興建農業倉庫,宜蘭地區共補助了頭圍、二結、羅東等地區興建農業倉庫。
1920年利澤簡地區仕紳集資成立「有限則任利則簡信用組合」,以利澤簡地區之存放款為主,1930年代,因私人的借貸風氣甚盛,金融次序混亂,直至後期產業組合的運作因受政府的鼓勵,方漸為農民所接受。
二結農會穀倉起造於昭和3年(1928)年,首先興建「二結第三事務所」,至昭和10年(1935)增建「儲穀倉庫」與「碾米工廠」,完成穀倉之主體建築。
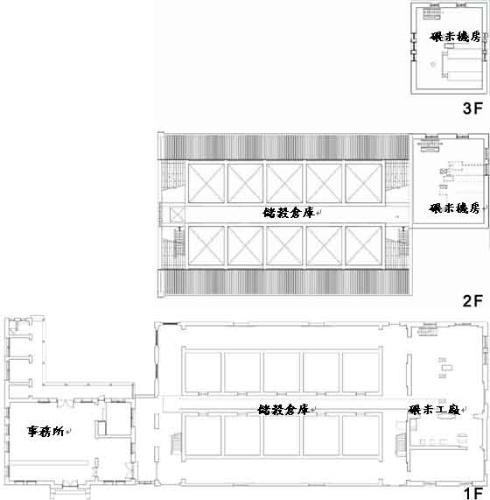
主體建築
整個二結穀倉是由穀倉「主體建築」以及周邊陸續增建之糙米倉庫、肥料倉庫、11號庫等附屬建築所構成的「建築群」。「主體建築」由事務所、儲穀倉庫、碾米機房所構成,承載穀倉之主要與基本功能:磚造(牆厚約40 cm)木構(屋頂),建築投影面積約780平方公尺。
為確保稻榖品質之基本功能,除考量防震安全而採磚造加混凝土承重牆之外,特別著重屋頂構造,開窗位置與型式,各種通風口設置,地板、壁體及下墊的結構,適當內部裝修…等,以達到避免太陽直射、維持低常溫、確保溼度等儲米環境調節功能。結構上,為達成足夠的穀倉容量,因而採用大跨距桁架屋頂,以及可承載更大壓力之承重牆。材料上,桁架則採傳統之木材,承重牆則採用紅磚。
事務所
挑高4.2公尺之單層樓建築,建築投影面積約195平方公尺(含過水廊19平方公尺)。
儲穀倉庫
以挑高8.5公尺之兩排共十個儲穀倉槽為主體;一排五個,中間貫通雙層走道 (上層「視察走道」、下層「中央走廊」),附東西兩側挑高4.5公尺之工作走道、南北有木造樓梯之短廊。屋頂設有台灣穀倉典型之「太子樓」。建築投影面積443平方公尺。
碾米工廠
是一座木隔樓板之三層樓房及一側棚。建築投影面積142平方公尺,其中之四分之一為貫通三層樓之木造碾米機。
二結穀倉的作業流程
二結穀倉的作業流程,大致分:登記檢驗、分送進倉、出倉碾製、包裝品管等四大步驟:
交榖
一般農民於收割後,先將稻穀晾曬(含水率13%以下),方將稻穀送交至農會穀倉。
檢驗
農民將稻穀送至穀倉南側入口檢驗(俗稱:倉口),檢驗通過後使得進倉。
進倉
進倉的運送方式,日治時期以斗式升降機與二樓輸送帶運榖進倉;國府時期,因稻米進倉數量減少,改由人力搬運進倉。
裝運
碾製完成之糙米,經過裝袋,堆放於外運倉庫或兩側走廊等待領取或出貨。
1935年利澤簡信用組合於五年前所設之二結第三事務所旁興建內設碾米場的農業倉庫,即為二結穀倉建築之後棟,此一倉庫為一相當專業之倉庫,具有自動化的機械運送設備,三層樓高的大型碾米機,以及良好的通風與防潮設計,同時在建築物東側租下一約兩百坪之土地,舖上當時相當昂貴的水泥,供農民曬穀之用,當時人稱之為組合埕。
到了1930年代末葉,為了統合所有物資,以支應戰爭所需,實施〈米穀自治管理法〉,臺灣總督府全面介入米穀買賣,使得「土壟間」失去了轉手利潤,只能收取加工費,造成許多碾米場倒閉。昭和16年(1941)5月在全島各州廳設立「米穀納入組合」以執行移出米買賣任務,規定稻米統一由國家向農民直接購買,促成了農村中本地金融的瓦解,也就是「土壟間」消失。
光復後,國民政府來台,接收了過去殖民時期米糧的控制機關「糧食統制倉庫」,之後一律撥藉各鄉鎮市區農會使用,建立公糧委託倉儲制度,二結穀倉亦為其中之一。於是原本做為農民合作機制的農業倉庫,轉變為替國家經收、保管、加工、撥付糧食的受託機構。其主要承辦業務包括「軍公教配糧及專案糧」、「田賦徵收實物」、「肥料換榖」等。
然而,在五○、六○年代台灣在以農業扶植工業的時期,基礎農業的發展,已今非昔比,原本是相當進步擁有自動化設備的二結穀倉,也逐漸老舊,機械老化腐蝕而遭拆除,建築也因天災破壞而失去原貌及原有之空間機能,而於民國72年結束其運作。
民國82年五結鄉農會在孝威興建了更現代化更進步的低溫儲存圓筒倉庫、擁有一貫化作業全自動壟榖精米機、稻穀烘乾機等的新倉庫,於是正式廢止了二結農業倉庫,而事務所亦遷至新大樓辦事,原前棟之事務所亦遭廢止。
將近55年營運期間,穀倉建築群隨政權遞擅、社會需求與政策變遷,加之天然災害之損壞、新技術之引用,而歷經多次修繕、增改建;部分使用方式既經調整,並有部分建築體毀壞無存。民國87年,宜蘭縣政府依據文化資產保存法規定之程序,指定二結穀倉為宜蘭縣縣定古蹟。並同步進行古蹟保存區劃設、以及史蹟調查研究與古蹟修復計劃等工作。
