086期-戰後蘭陽建築展個案介紹:後冬山河時期(一)開放式校園
文/圖:蘭陽博物館
後冬山河時期,自1990年代中期迄今。這時期,象設計集團與高野景觀株式會社已轉向本土化,而與受到宜蘭空間改造運動吸引的建築師,在冬山河親水公園概念的鼓舞下,接力發展與百花齊放的階段。「後」的意涵,引自後現代的論述,是時間的順序,指冬山河親水公園以後的發展。之所以採取如此籠統的指謂,是因為觀念上這時期的創作者各有所思,風格各異,缺乏一致的內在,而彼此唯一能歸納在一起的,就是不約而同地跳脫理性主義僵硬的窠臼,用感性拉近人與建築的疏離感。
在這階段,除了不同建築師各別的作品形成之「宜蘭新建築」外,也廣義地,把宜蘭地區自發性的「開放校園」與「宜蘭厝」的成果納入。
冬山河親水公園的成功,不僅成功地為宜蘭帶來大量的觀光人潮,讓它成為宜蘭空間改造運動的樣板,也促進宜蘭公部門對建築設計有更開放的接受度。也因此,不僅留住宜蘭子弟在地深耕,如黃建興建築師,也吸引許多年輕建築師,如黃聲遠、李綠枝等,投身後山;或者,即使是外縣市的建築師,也樂意參予蘭陽地區的建築創作,因為這裡可以接納有創意的想像。
就概念的層面,由於日本象設計集團,是以主觀的意識投射到客觀的原始地貌,辯證地綜合成一種遊移於主、客觀意識之間的空間形象,其思路與理性至上的現代主義迥異,反而,現象學之存而不論的感性意識,成為理解其設計的最佳途徑。
但是後冬山河時期新加入的建築師們,不必然是延續著象設計集團的設計路線,比如冬山河時期較為著重的符號式空間創作路線,逐漸讓位給對於環境融入的強調。但他們仍有著共同的特色,就是相對於西部或台北而言,他們可以用更多元的角度、更多元的手法,與感性的方式處理建築,並且在1994年,催生「宜蘭厝」活動,這是台灣戰後最重要的建築主動反思的運動之一 !
步入後冬山河時期的宜蘭空間改造計劃,不僅成為許多縣政效尤的對象,而蘭陽地區的建築,以其自由、奔放的想像與創意,活躍的表現,開啟了地方建築發展的盛世,也讓宜蘭成為當下台灣建築發展的指標。
而且,也許我們有點樂觀,但我們的確相信,現在蘭陽的新建築,讓我們感受到,如1970年代那樣,再度逼近與世界同步感應,在未來建築可能發展之路徑的臨界點,接下來的,就要看建築師們是否有自信,發展出自已的建築論述!
育才國小
育才國小
Yucai Elementary School / 1997-2001
劉志鵬建築師事務所+楊春旺建築師事務所
為舊校園改建為開放校園之代表。育才國小創校於1918年,1938年遷至現址。改建後之校園空間,設大草坪於進士路轉角,除可與社區生活密切外,因與進士路幾成45度關係,顯得異常開闊宜人。校園邊界不設圍牆,而可以自由穿越的風雨走廊象徵性分殊內外,更顯自在。
南屏國小
南屏國小
Nanpin Elementary School / 1992-2001
黃建興建築師事務所
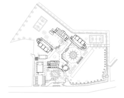
是標誌開放校園運動步入成熟期的作品,台灣數十年來國民中小學校舍設計常規在此被全面革新。如以往便於集合聽訓而採用的工字形或口字形配置,在「學校家庭化」理念下,代之三個小型合院之組合,便於學童下課戶外活動並較有親密感。為讓導師入駐教室單元重新設計,制式運動場則以開敞草坪取代之,且不設圍牆。
凱旋國中
凱旋國中
Kaisyuan Junior High School / 2003-2007
黃建興建築師事務所
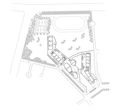
凱旋國中成功將都市計畫與校園設計合而為一。基地位於縣政中心地區龜山島軸線之端點,因此設計先將校園正門置於東端,迎接此軸線。再以正門前廣場為樞紐,連續軸線進入校園,藉由中庭空間之縮轉轉折逐步放大等,最後讓空間序列止於開闊的運動場,並依此巧妙安排教學空間。其旁跟隨利於學童活動之鋼棚架,由低而高有機起伏,更增空間之戲劇性。
